Contexte/environnement
En savoir plusLes ingénieurs et concepteurs LED de Street Co ont été contactés par Claudine Leroch, architecte officielle chargée de la rénovation de la boutique Rivoli à Saint-Pétersbourg.
Rive Gauche a insisté pour ajouter des éléments et une touche élégants et numériques à la vitrine.
Pour la boutique de vitrines, le cahier des charges était simple et direct :
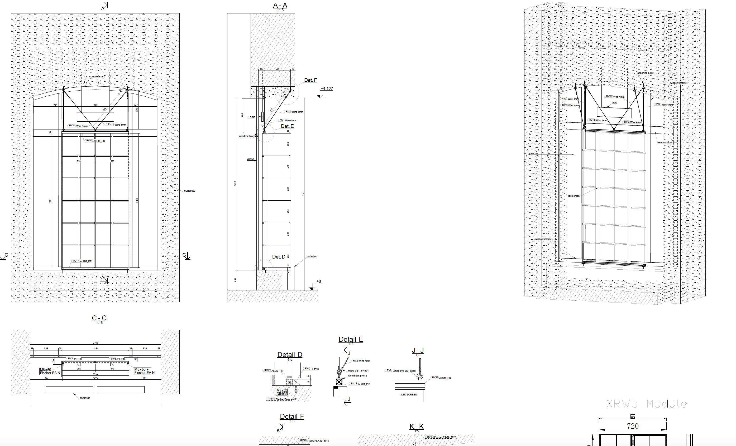
« Nous devons ajouter un écran LED transparent sur notre boutique de vitrines pour renforcer la promotion de l'image de marque et promouvoir la narration des marques auprès des passants. »
Ce projet s'inscrivait dans le cadre d'une rénovation globale de la plupart des magasins de Saint-Pétersbourg depuis la Rive Gauche. Cette boutique en particulier appartient à la marque supérieure appelée « Rivoli » situé sur la célèbre avenue Ligovsky. Adresse complète : 30А, Saint-Pétersbourg, Russie, 191040
L'équipe d'architectes de Rive Gauche était prête à recevoir des conseils et des propositions de design pour la boutique en utilisant nos produits et technologies.
Après quelques réunions de réflexion, Street co a proposé quelques options pour habiller l'espace des vitrines avec des écrans LED numériques transparents.









































