Contexte/environnement
En savoir plusAprès le succès que nous avons connu avec le magasin phare de Rive Gauche Saint Petersburg Galeria, le propriétaire de la boutique souhaitait continuer à équiper toutes les nouvelles ouvertures de magasins d'un écran LED transparent pour les vitrines.
Les ingénieurs et designers LED de Street Co ont de nouveau été contactés par Claudine Leroch, architecte officielle des plus grands projets de magasins de détail de la marque. Rive Gauche pour une consultation pour le nouveau magasin phare de Moscou.
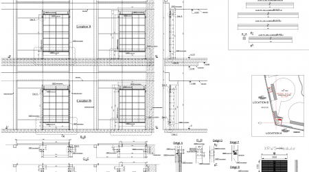
Le client a partagé des dessins CAO du plan d'étage. L'objectif principal était d'indiquer aux clients du futur magasin qui se promenaient à la fois à l'extérieur de la zone commerciale mais également dans les ruelles du centre commercial Megamall Khimki Moscow que le nouveau magasin ouvrira ses portes et utilisera la vitrine pour faire de la publicité pour les produits et les promotions vendus dans le magasin.
Rive Gauche a insisté pour ajouter un élément futuriste et numérique à la vitrine. Pour les vitrines, le brief était simple et direct :
« Nous devons ajouter un écran LED transparent au magasin de vitrines pour augmenter la fréquentation »
Ce projet s'inscrivait dans le cadre de la rénovation globale de la plupart des magasins Rive Ggauche de Moscou. Celui-ci était situé dans le célèbre centre commercial : Mega Mall Khimki, centre commercial de Moscou Leningradskoye Hwy, 39, Khimki, Oblast de Moscou, Russie, 141400
L'équipe d'architectes de Rive Gauche était à la recherche de suggestions pour trouver exactement où installer l'écran LED transparent dans la vitrine.
Considérant que la façade du bâtiment était immense, plus de 600 m² répartis sur 2 étages, Rive Gauche a consulté Street Co' pour trouver le meilleur emplacement sur la façade du bâtiment afin d'équiper l'écran d'affichage LED transparent.
Options de conception dans la boutique utilisant nos produits et technologies, ils étaient ouverts à recevoir des conseils et des propositions de design. Ils voulaient clairement être convaincus que nos designs étaient meilleurs que tout ce à quoi ils avaient pensé auparavant. Cependant, leur vision était claire : en ouvrant cette boutique, ils voulaient devenir la boutique de cosmétiques la plus avancée, la plus élégante et la plus orientée vers le numérique, et générer plus de fréquentation et de ventes au sein de la boutique.
Ils souhaitaient également se démarquer de ce qui existe déjà sur le marché et surtout se différencier de leurs principaux concurrents qui ont une boutique au sein du même centre commercial.
Objectif du client
- Créez une expérience d'achat exceptionnelle
- Créez une atmosphère « comme chez vous »
- Augmenter le temps que les clients passent dans la boutique
- Augmenter la moyenne des dépenses des clients (peut-être pour des produits particuliers)
- Réalisez un retour sur investissement
Après quelques réunions de réflexion, Street co a proposé quelques options pour décorer l'espace des vitrines avec des écrans LED numériques transparents.







































