Contexte/environnement
En savoir plusLes ingénieurs et designers LED de Street Co ont été contactés par Claudine Leroch, architecte officielle des plus grands projets de magasins de détail de la marque. Rive gauche pour une consultation concernant le nouveau magasin phare de Saint-Pétersbourg. Le client a partagé des dessins CAO du plan d'étage. L'objectif principal était de promouvoir l'ouverture du nouveau magasin phare auprès des clients du centre commercial et d'utiliser les vitrines pour faire de la publicité pour les produits et les promotions vendus dans le magasin. Rive Gauche a insisté pour ajouter des éléments et une touche futuristes et numériques à la vitrine. Pour la boutique de vitrines, le cahier des charges était simple et direct :
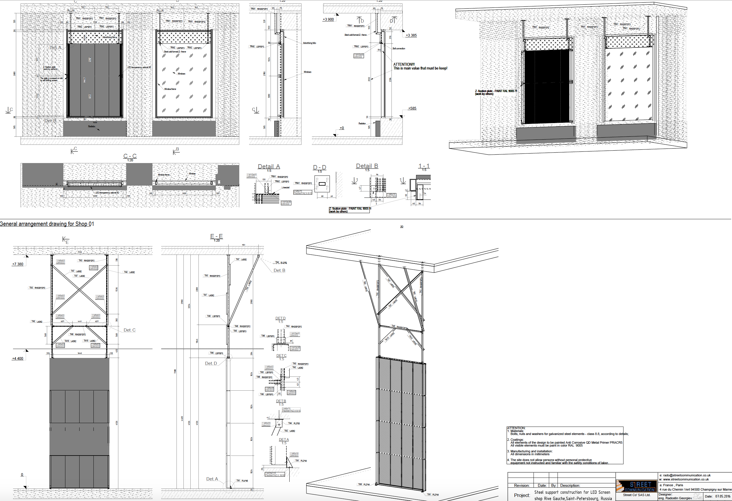
« Nous devons ajouter un écran LED transparent sur notre vitrine pour augmenter la fréquentation »
Ce projet s'inscrivait dans le cadre d'une rénovation globale de la plupart des magasins de Saint-Pétersbourg depuis la rive gauche. Celui-ci était situé dans le célèbre centre commercial : Centre commercial Galeria Avenue Ligovsky, 30A, Saint-Pétersbourg, Russie, 191040
L'équipe d'architectes de Rive Gauche était prête à recevoir des conseils et des propositions de design pour la boutique en utilisant nos produits et technologies. Ils voulaient clairement prouver que nos designs étaient meilleurs que tout ce à quoi ils avaient pensé auparavant. Leur vision était claire : en ouvrant cette boutique, ils voulaient placer la barre en matière de boutique de cosmétiques la plus avancée, la plus élégante et la plus orientée vers le numérique.
Avec une équipe d'architectes très orientés vers le client, nous avons dû proposer des écrans LED qui non seulement séduiraient les clients orientés vers l'art, mais qui apporteraient également un retour sur investissement et atteindraient les objectifs de vente.
Ils souhaitaient également se démarquer de ce qui existait déjà sur le marché et surtout se différencier de leur principal concurrent qui possède une boutique juste à côté d'eux.
Objectif du client
- Créez une expérience d'achat exceptionnelle
- Créez une atmosphère « comme chez vous »
- Augmenter le temps que les clients passent dans la boutique
- Augmenter la moyenne des dépenses consacrées aux clients (peut-être pour des produits particuliers)
- Réalisez un retour sur investissement
Après quelques réunions de réflexion, Street co a proposé quelques options pour habiller l'espace des vitrines avec des écrans LED numériques transparents.






































