Contexte/environnement
En savoir plusLes ingénieurs et concepteurs LED de Street Co ont été contactés par Claudine Leroch, l'architecte officielle des plus grands projets de magasins de détail de la marque Rive gauche.
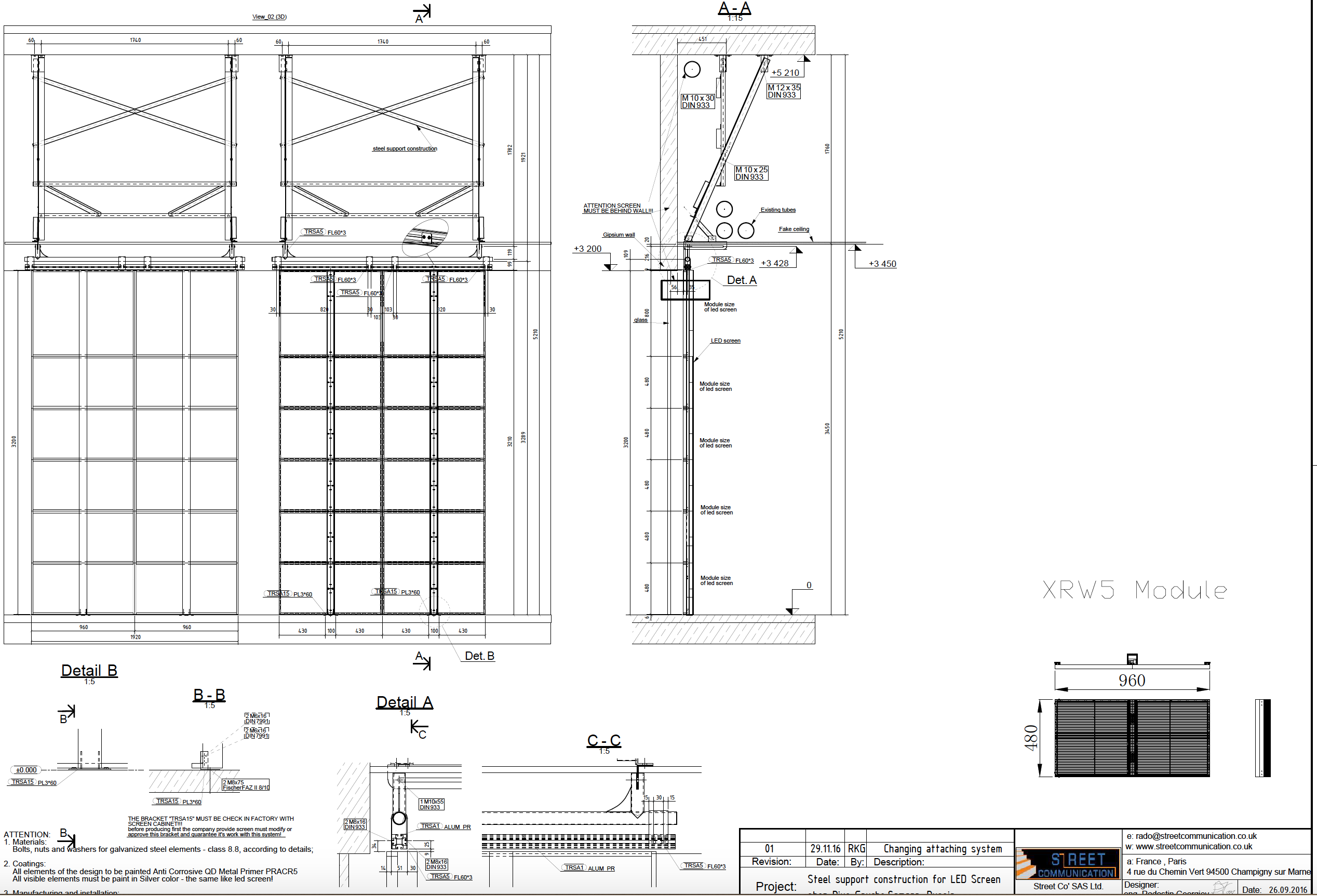
Pour la boutique de Samara, le brief était simple et direct :
« Nous devons ajouter un écran transparent à notre boutique de vitrines pour augmenter la fréquentation »
Ils voulaient faire de la publicité pour les produits vendus dans le magasin situé à l'extérieur du centre commercial Allies.
Ce projet s'inscrivait dans le cadre d'une rénovation globale de la plupart des magasins de Samara depuis la rive gauche. Celui-ci se trouvait à l'adresse suivante : « Молот », Ulitsa Kuybysheva, Kosmoport трс « космопортртртртртртртртртртртрта », Ulitsa Dybenko, 30 ans, Samara, oblast de Samara, Russie, 443086, dans le célèbre centre commercial TRK « Kosmoport ».
L'équipe d'architectes de Rive Gauch savait exactement quelle réaction elle souhaitait obtenir de la part de ses clients. Leur équipe était très axée sur le client et souhaitait tirer le meilleur parti de chaque centimètre carré de la façade.


















































